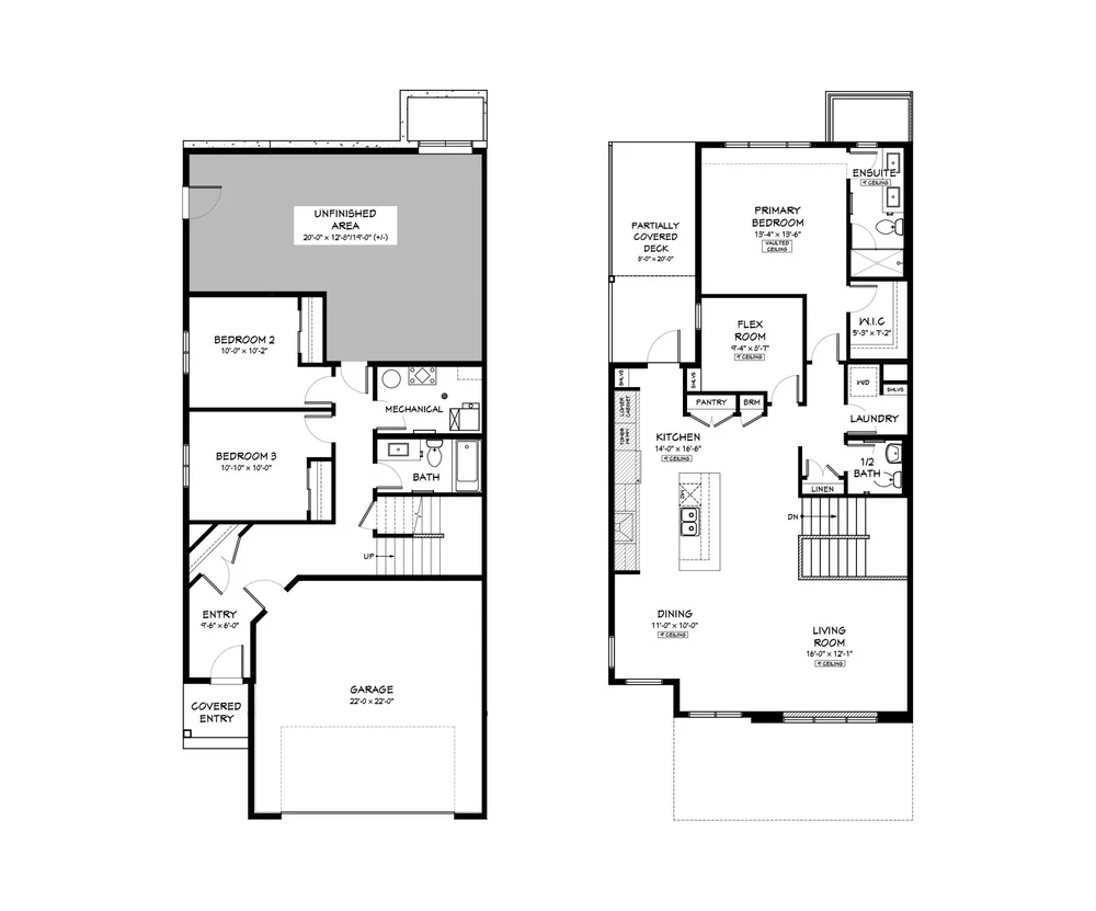
Cristallo F 450 Arrowleaf Rise
Discover a thoughtfully designed walk-up duplex with 9 ft ceilings, a double attached garage, an open concept main floor with primary suite, laundry, and flex room, plus a partially covered deck and private backyard.
- 3 Bedroom, 2.5 Bathroom
- 1956 sqft
- Double Attached Garage
- 9' Ceilings
- Main Floor Primary Suite & Laundry
- Open Concept Main Floor w/Flex Space
- Partially Covered Rear Deck
- Available Early 2026
Floor Plans

Contact Carriage Signature Homes
Learn more about this opportunity from
Carriage Signature Homes